Erfüllung der aktuellen QNG-Anforderungen im Lebenszyklus
Die Bauwirtschaft steht seit dem Europäischen Green Deal und dem Ziel der Klimaneutralität bis 2050 verstärkt im Zeichen der Nachhaltigkeit. Dieser Beitrag untersucht die ökologische Qualität eines Mehrfamilienhauses aus Kalksandstein im Hinblick auf das Qualitätssiegel Nachhaltiges Gebäude (QNG). Das Gebäude umfasst sechs Wohneinheiten und wurde mit einer Photovoltaik- sowie einer Solaranlage ausgestattet, um die Anforderungen des Gebäudeenergiegesetzes (GEG) sowie den Effizienzhaus-40-Standard zu erfüllen. Die Ökobilanzanalysen zeigen, dass die Grenzwerte sowohl beim Treibhauspotenzial (GWP) als auch beim nicht erneuerbaren Primärenergiebedarf (PENRT) unterschritten werden. Damit erfüllt das Mehrfamilienhaus die Premiumanforderungen des QNG. Einen wesentlichen Beitrag hierzu leistet die Wahl von Kalksandstein als tragendes Baumaterial, das über den gesamten Lebenszyklus hinweg durch geringe Umweltwirkungen überzeugt.
1 Einleitung und Zielsetzung
Seit der Verabschiedung des Europäischen Green Deal und der weitreichenden Zielsetzung der Europäischen Kommission, Europa bis 2050 zur Klimaneutralität zu führen, hat die Thematik der Nachhaltigkeit in ihren drei Dimensionen – Ökologie, Ökonomie und Soziales – in sämtlichen Wirtschaftssektoren erheblich an Bedeutung gewonnen. Dies trifft insbesondere auf die Bauwirtschaft zu, die als einer der zentralen Bereiche der deutschen Wirtschaft eine entscheidende Rolle in diesem transformativen Prozess einnimmt. Gerade in diesem sensiblen Abschnitt der Geschichte des Bauens in Deutschland zeichnet sich Kalksandstein nicht nur durch seine praktisch unbegrenzte Lebensdauer und Regionalität sowie durch seine herausragenden physikalischen Eigenschaften wie Schall- und Brandschutz, Behaglichkeit und hohe Tragfähigkeit aus, sondern erweist sich auch als ökologisches Bauprodukt. Letzteres wird in diesem Beitrag exemplarisch untersucht: Ein Mehrfamilienhaus aus Kalksandstein wird nach den Bilanzierungsregeln des QNG des Bundesministeriums für Wohnen, Stadtentwicklung und Bauwesen ökobilanziert und den Anforderungen an GWP-Emissionen sowie nicht erneuerbaren Primärenergiebedarf über den Lebenszyklus gegenübergestellt.
2 Beschreibung des untersuchten Mehrfamilienhauses
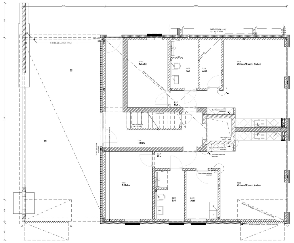
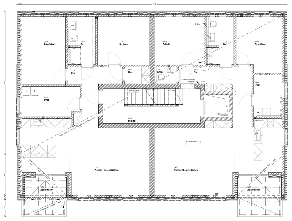
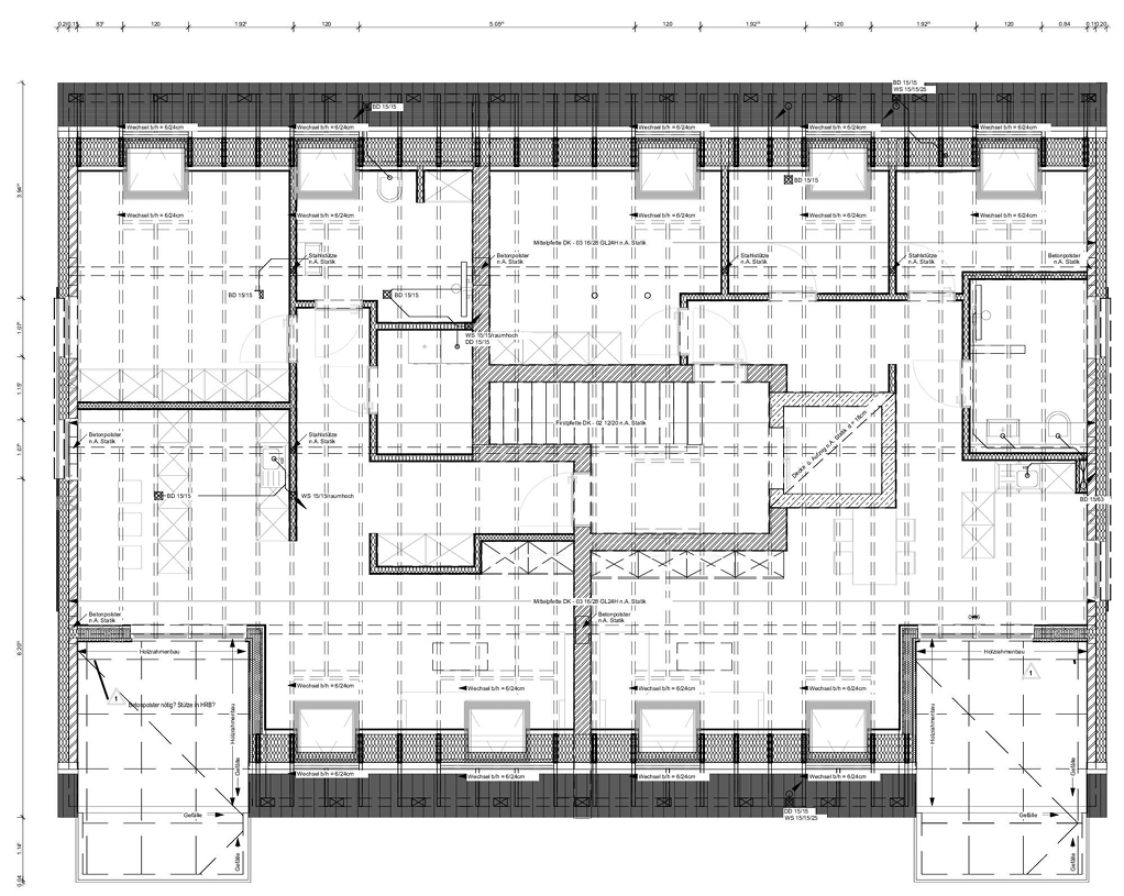
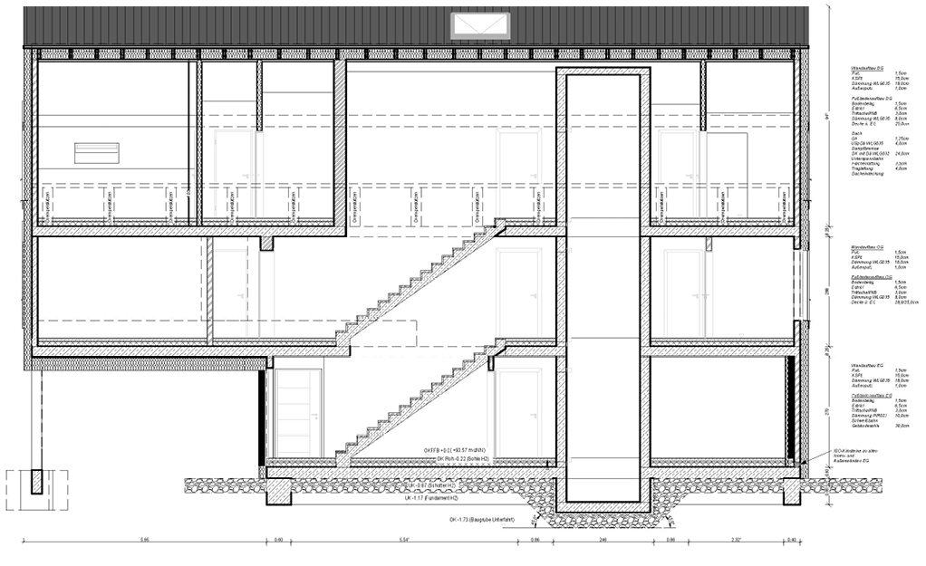
Das untersuchte Mehrfamilienhaus in Kalksandsteinbauweise wurde von Brüning + Hart Architekten geplant und umfasst insgesamt sechs Wohneinheiten. Die Grundfläche des Erdgeschosses beträgt 181 m² (Bild 1), während die Flächen des 1. Obergeschosses und des Dachgeschosses jeweils 258 m² betragen (Bilder 2, 3). Der Zugang zu den Stockwerken erfolgt neben dem Treppenhaus über einen Fahrstuhl. Die Decken wurden in Stahlbetonbauweise konzipiert. Das Mehrfamilienhaus ist nicht unterkellert (Bild 4).
Die Außen- und Innenwände bestehen aus Kalksandsteinmauerwerk. Der Aufbau und die Dicke der Außenwände sind in Bild 5 dargestellt, während Bild 6 den Aufbau des Daches zeigt. Zusätzlich verfügt das Gebäude über einen Anbau, der ausschließlich für technische Anlagen vorgesehen ist. [1]

Quelle: Ubakus
Um ein umweltfreundliches Gebäude zu schaffen, sind mehrere Kriterien bereits in der Planungsphase zu berücksichtigen. Ein starker Fokus sollte auf die Gebäudetypologie, die Geometrie sowie die Nutzung des Gebäudes gelegt werden. Dabei sollten in der Anfangsphase der Planung im Sinne einer nachhaltigen Entwicklung die drei Transformationsstrategien Suffizienz, Effizienz und Konsistenz berücksichtigt werden.

Quelle: Ubakus
Darüber hinaus spielt die Auswahl der Baumaterialien mit geringen Umweltauswirkungen (dokumentiert in den Umweltproduktdeklarationen) eine entscheidende Rolle für ein nachhaltiges Gebäude, da diese in die Berechnung der Ökobilanzanalyse einfließen. Umweltfreundliche Baustoffe sollten daher bereits in der Planungsphase ausgewählt bzw. festgelegt werden. Hier gilt der Grundsatz, dass die Baustoffe in allen Lebenszyklusphasen (A–C) möglichst niedrige GWP- und PENRT-Werte aufweisen sollten.
Um einen möglichst geringen Primärenergieverbrauch bzw. Endenergieverbrauch in der Nutzungsphase (Modul B6) zu erreichen, ist neben einer sehr guten energetischen Qualität der thermischen Gebäudehülle die Auswahl geeigneter technischer Gebäudeausrüstung (TGA) entscheidend, um die Anforderungen des QNG zu erfüllen und den EH-40-Standard zu erreichen.
Das untersuchte Mehrfamilienhaus aus Kalksandsteinmauerwerk wurde daher mit einer Photovoltaikanlage mit einer Fläche von 164 m² sowie einer Solaranlage mit einer Fläche von 100 m² geplant. Beide Systeme sind sowohl auf dem Hauptdach als auch auf dem Flachdach des Anbaus vorgesehen. Aus diesen Maßnahmen sowie den in Bildern 7 und 8 dargestellten Ergebnissen geht hervor, dass das untersuchte Mehrfamilienhaus die GEG-Anforderungen bzw. den EH-40-Standard erfüllt.
Weitere Daten des Mehrfamilienhauses können Tab. 1 entnommen werden.
Tab. 1 Kennwerte des Mehrfamilienhauses, Daten entnommen aus [1]
| Detail | Wert/Maß |
|---|---|
| Standort | Nordrhein-Westfalen |
| Baujahr | 2021 |
| Gebäudetyp | Mehrfamilienhaus |
| Gebäudeart | Freistehend |
| Geschossanzahl | 2 + 1 Dachgeschoss |
| Anzahl Wohneinheiten | 6 + Anbau (Technik) |
| Keller | Nicht unterkellert |
| Mauerwerksart außen | Kalksandstein |
| Mauerwerksart innen | Kalksandstein |
| Art Zwischendecken | Stahlbeton |
| Aufzugsschacht | Stahlbetona |
| Treppe | Stahlbeton |
| Dachform | Satteldach |
Ein weiteres wichtiges Kriterium für ein nachhaltiges Gebäude ist es, die Transmissionswärmeverluste und den Primärenergiebedarf so gering wie möglich zu halten. Dies kann durch niedrige U-Werte der jeweiligen Bauteile erzielt werden.
Tab. 2 U-Werte der Bauteile des Mehrfamilienhauses, Daten entnommen aus [2]
| Gebäudeteil | U-Wert | Einheit |
|---|---|---|
| Bodenplatte | 0,17 | W/(m²⋅K) |
| Außenwand | 0,17 | W/(m²⋅K) |
| Außenfenster | 0,70 | W/(m²⋅K) |
| Außentür | 0,80 | W/(m²⋅K) |
| Dach | 0,14 | W/(m²⋅K) |
In Tab. 2 sind die U-Werte der Bauteile des untersuchten Mehrfamilienhauses aus Kalksandstein aufgeführt. Die bei der Ökobilanzierung des untersuchten Mehrfamilienhauses berücksichtigten Hauptflächen der Bauteilebenen können Tab. 3 entnommen werden.
Tab. 3 Gebäudegeometrie – Flächen, Daten entnommen aus [1]
| Bauteile | Fläche |
|---|---|
| Bodenplatte | 202 m² |
| Decken | 560 m² |
| Außenwand | 404 m² |
| Außenfenster (Dreifachverglasung) | 82 m² |
| Außentüren | 9 m² |
| Dach (Satteldach Neigung 45°) | 269 m² |
| Flachdachanbau | 44 m² |
Aus den angegebenen Flächen ergibt sich die in Tab. 4 zusammengefasste Gebäudegeometrie des untersuchten Mehrfamilienhauses.
Tab. 4 Gebäudegeometrie – Zusammenfassung, Daten entnommen aus [1, 3]
| Bezeichnung | Wert | Einheit |
|---|---|---|
| Gebäudehüllfläche | 953 | m² |
| Gebäudevolumen | 2150 | m³ |
| Beheiztes Luftvolumen | 1633 | m³ |
| Gebäudenutzfläche | 688 | m² |
| Nettogrundfläche | 630 | m² |
| Beheizte Wohnfläche | 573 | m² |
| A/Ve-Verhältnis | 0,44 | 1/m |
| Fensterfläche | 82 | m² |
Ökobilanzanalyse
Die für die Ökobilanz betrachteten Rahmenbedingungen sind in Tab. 5 zusammengestellt. Diese Darstellung ermöglicht zum einen die Nachvollziehbarkeit der Vorgehensweise und erleichtert zum anderen die Vergleichbarkeit der Ergebnisse mit anderen Studien.
Tab. 5 Rahmenbedingungen für die Ökobilanzierung des Mehrfamilienhauses
| Lebenszyklusphasen | A1–A3, B4, B6, C3, C4 |
| Indikatoren | GWP, PENRT |
| Datengrundlage | Ökobilanzierung Rechenwerte 2023 Version 1.3 |
| Lebensdauer in den einzelnen Schichten | Bundesinstitut für Bau-, Stadt- und Raumforschung 2017 |
| Funktionelle Einheit | 1 m2 NRF/a |
| Betrachtungszeitraum | 50 Jahre |
| Werte für den Endenergiebedarf | GEG-Berechnung nach DIN V 18599 |
| Bilanzregel | QNG LCA-Bilanzregeln für Wohngebäude, Version 1.3 |
Die Ökobilanzergebnisse des Mehrfamilienhauses aus Kalksandstein zeigen, dass die Anforderungen des QNG sowohl im Hinblick auf das Treibhauspotenzial (GWP) als auch auf die nicht erneuerbare Primärenergie (PENRT) deutlich unterschritten werden. Darüber hinaus werden in dem Fall sogar die Premiumanforderungen des QNG erfüllt (Bilder 9, 10). Aus der Untersuchung ergeben sich die in Tab. 6 dargestellten Werte. Diese repräsentieren die Ergebnisse von Modul B6 des untersuchten Mehrfamilienhauses aus Kalksandstein.
Tab. 6 Ergebnisse B6 des Mehrfamilienhauses, Daten entnommen aus [3]
| Gebäude | Pirmärenergiebedarf QP[kWh/(m² ·a)] | Spez. Transmissionswärmeverlust HT‘[W/(m² ·K)] |
|---|---|---|
| MFH | 8,33 | 0,21 |
Wie Bild 9 zu entnehmen ist, zeigen die Ergebnisse der Lebenszyklusphasen, dass die Herstellungsphase (Modul A1–A2) einen niedrigen GWP-Wert von 5,48 kg CO₂-Äq./(m²⋅a) aufweist. Die Nutzungsphase (Modul B6) hingegen verzeichnet mit 10,71 kg CO₂-Äq./(m²⋅a) einen höheren GWP-Wert als die anderen Lebenszyklusphasen.
Die aktuellen QNG-Premium-Anforderungen für den GWP-Wert liegen bei 20 kg CO2-Äq./(m²⋅a). Das Mehrfamilienhaus aus Kalksandsteinmauerwerk erfüllt diese Anforderungen und bleibt deutlich unter diesem Grenzwert.
Analog zum GWP des Mehrfamilienhauses aus Kalksandsteinmauerwerk zeigt Bild 10, dass die PENRT-Werte in der Nutzungsphase (Modul B6) den höchsten Wert mit 37,48 kWh/(m²⋅a) aufweisen. Der zweithöchste Wert entfällt auf die Herstellungsphase (Module A1–A3) mit einem PENRT-Wert von 18,81 kWh/(m²⋅a).
Die aktuellen QNG-Premium-Anforderungen für den PENRT-Wert liegen bei 64 kWh/(m²⋅a). Das Mehrfamilienhaus aus Kalksandsteinmauerwerk erfüllt diese Anforderungen und bleibt unter diesem Grenzwert.
Nachfolgend sind die durch die einzelnen Bauteile verursachten GWP-Emissionen (Bild 11) und der jeweils entstehende Primärenergiebedarf nicht erneuerbar (Bild 12) dargestellt.
Bild 11 zeigt, dass die Ergebnisse der Ökobilanzierung der Bauteile dieses Mehrfamilienhauses darauf hinweisen, dass die Decken tendenziell höhere Umweltauswirkungen verursachen. Dies wird durch ihren GWP-Wert von 1,79 kg CO₂-Äq./(m²⋅a) deutlich, was auf die Verwendung von Stahlbeton zurückzuführen ist.
Die Gebäudetechnik weist mit einem GWP-Wert von 1,46 kg CO₂-Äq./(m²⋅a) die zweithöchsten Umweltauswirkungen auf, was auf die Herstellung und das Recycling der TGA-Einrichtungen zurückzuführen ist.
Bild 12 zeigt, dass die PENRT-Werte nahezu die gleichen Ergebnisse wie die GWP-Werte des Mehrfamilienhauses aus Kalksandsteinmauerwerk aufweisen. Die Decken weisen ebenfalls den höchsten PENRT-Wert von 5,48 kWh/(m²⋅a) auf, gefolgt von der Gebäudetechnik mit einem PENRT-Wert von 5,35 kWh/(m²⋅a), der den zweithöchsten Wert darstellt.
Beim untersuchten Mehrfamilienhaus aus Kalksandsteinmauerwerk wurden im Rahmen der Untersuchung in der Kategorie Sonstige Betonteileberücksichtigt: Treppen und Podeste aus Stahlbeton, die Aufzugsschachtwände aus Stahlbeton sowie die Fundamente und die Bodenplatte.
Darüber hinaus umfasst die Kategorie Sonstige Maßnahmen die Innentüren, Außentüren sowie das dazugehörige Zubehör wie Türgriffe und Türrahmen.
Unter Gebäudetechnik wird die gesamte technische Gebäudeausrüstung (TGA) verstanden, die im Mehrfamilienhaus eingeplant ist. Diese umfasst ebenfalls die Photovoltaikanlage und die Solarthermieanlage.
Zudem wurden die Dämmung und die Fenster (Dreifachverglasung) zusammen mit den Außenwänden ökobilanziert. Aus der Untersuchung geht hervor, dass der GWP-Anteil der Dämmung 3,8 % des gesamten GWP-Wertes auf Bauteilebene des untersuchten Mehrfamilienhauses beträgt, während der GWP-Anteil der Fenster (Dreifachverglasung) 1,7 % ausmacht.
Fazit
Die vorliegende Arbeit hatte das Ziel, ein Mehrfamilienhaus aus Kalksandstein auf die Erfüllung der aktuellen QNG-Anforderungen zu untersuchen.
Zusammenfassend lässt sich feststellen, dass der Anteil der CO2-Emissionen, der auf das Kalksandsteinmauerwerk (Außen- und Innenwände) zurückzuführen ist, beim Treibhauspotenzial (GWP) des gesamten Lebenszyklus des Mehrfamilienhauses 2,59 kg CO₂-Äq./(m²⋅a) beträgt. Dies entspricht insgesamt 14,1 % der gesamten Emissionen über den gesamten Lebenszyklus des Gebäudes (A–C). Der nicht erneuerbare Primärenergiebedarf (PENRT) beläuft sich auf 7,78 kWh/(m²⋅a), was 12,2 % des gesamten PENRT-Wertes des Mehrfamilienhauses über seinen gesamten Lebenszyklus ausmacht (A–C).
Die Ergebnisse dieser Arbeit zeigen, dass das untersuchte Mehrfamilienhaus aus Kalksandsteinmauerwerk unter Berücksichtigung der Planungskriterien und der richtigen Auswahl der Baumaterialien auch die sehr anspruchsvollen Anforderungen des QNG-Premium-Standards erreichen kann.
Zudem konnte festgestellt werden, dass das untersuchte Gebäude nicht nur von den sehr guten physikalischen Eigenschaften des Kalksandsteins profitieren kann, sondern dass die Wahl dieser Bauweise auch die Grundlage für ein umweltfreundliches und nachhaltiges Gebäude bietet.
Literatur
- Brüning + Hart Architekten (2021) Daten für Mehrfamilienhaus (MFH). Münster: Brüning + Hart Architekten.
- Ubakus (2025) U-Wert-Rechner[Software].https://www.ubakus.de/u-wert-rechner
- Hottgenroth Software AG (2025) Energieberater 18599 3D PLUS[Software]. https://www.hottgenroth.de
Weiterführende Literatur
SI-Software: Istanbuly, Z., Richter, T., Schäfers, M., Eden, W., Fouad, N. A. (2024) Ökobilanzielle Lebenszyklusbetrachtung von Gebäuden – eine numerische Methode zur Optimierung der Gebäudeplanungin: Fouad, N. A. [Hrsg.] Bauphysik-Kalender2024 Berlin: Ernst & Sohn, S. 193–228.
Autor:innen
M. Eng. (FH) Safwan Baker Elyas,
safwan.baker.elyas@stud.uni-hannover.de
Institut für Bauphysik der Leibniz Universität Hannover
www.ifbp.uni-hannover.de
Prof. Dr.-Ing. Martin Schäfers, martin.schaefers@hawk.de
HAWK – Hochschule für angewandte Wissenschaft und Kunst, Hildesheim/Holzminden/Göttingen
www.hawk.de/de/hochschule/fakultaeten-und-standorte/bauen-und-erhalten
M. Sc. Zakaria Istanbuly, Zakaria.istanbuly@kalksandstein.de
Forschungsvereinigung Kalk-Sand e. V. / Bundesverband Kalksandsteinindustrie e. V., Prüf- und Forschungsinstitut, Hannover
www.kalksandstein.de
Dieser Aufsatz wurde in einem Peer-Review-Verfahren begutachtet.
Eingereicht: 28. März 2025; angenommen: 30. September 2025.











