Ökologisch, wiederverwendbar, ohne Beton und bezahlbar
Das Strohhaus NOW Lindow zeigt, wie ein Gebäude nachhaltig, ökologisch und nahezu vollständig wiederverwendbar sein kann. Die drei Prinzipien „nachhaltig, ökologisch und wiederverwendbar“ sind Namengeber des Projekts und leiten die Architektur, die damit einen gesunden und ästhetischen Lebensraum aus regionalen und regenerativen Materialien wie Stroh erschafft. Das gänzlich ohne Beton errichtete Haus kann wieder demontiert und zum Großteil sogar kompostiert werden, sodass nahezu kein Abfall entsteht. NOW Lindow beweist, dass gesundes, nachhaltiges, ressourceneffizientes und ökologisches Bauen auch schön und bezahlbar sein kann.
1 Einleitung
Die Zukunft des Bauens liegt in einem schonenden Umgang mit den endlichen Ressourcen sowie in dem nachhaltigen Einsatz von nachwachsenden Rohstoffen, weg von einer linearen und hin zu einer kreislauffähigen Bauwirtschaft. Bei der Planung des Wohn- und Ferienhauses in der brandenburgischen Stadt Lindow (Mark), etwa 60 km nördlich von Berlin, war es deshalb Ziel, Ökologie und Kreislauffähigkeit konsequent umzusetzen und gleichzeitig eine Ästhetik zu finden, die trotz oder gerade wegen des Einsatzes biobasierter Materialien Ruhe und Klarheit ausstrahlt. In dem Gebäude sind vor allem Stroh und Holz verbaut, was alleine in der Gebäudehülle zu einer Einsparung von insgesamt rund 20 t CO2 führt (Bild 1).
Die Oberflächen im Innenraum wie Holz, Lehm und Kork sind weitgehend naturbelassen, sodass ein gesundes und zugleich feuchteregulierendes Innenraumklima entsteht. Eine komplexe und deshalb wartungsintensive Haustechnik gibt es in diesem Low-Tech-Ansatz nicht. Geheizt wird mit Infrarot, die Warmwasserbereitung erfolgt über elektrische Kleingeräte und die Belüftung auf natürliche Weise dank passiver Maßnahmen. Das gesamte Gebäude steht auf Schraubfundamenten, wodurch es zwischen der Geländeoberfläche und der Hausunterseite einen Abstand gibt, mit dem das leichte Gefälle ausgeglichen werden konnte. Mittels einer Photovoltaik-Anlage auf dem begrünten Dach wird Strom für den Eigenbedarf gewonnen. Das Interesse an dem Haus ist groß: Seit Fertigstellung finden vor Ort immer wieder Führungen und Diskussionsrunden zum ökologischen und kreislauffähigen Bauen statt.
2 Entwurf: Klare und minimalistische Ästhetik
Das Ziel des Projekts, Nachhaltigkeit und Kreislauffähigkeit konsequent umzusetzen, war gleichzeitig wichtiger Treiber des Entwurfs. Für den Architekten ist das Projekt auch eine Untersuchung, wie Ehrlichkeit und Klarheit zusammengeführt und damit die Vorbehalte gegenüber sichtbaren Materialien aufgelöst werden können. Auf dieser Basis entstand eine Ästhetik, die eine Einfachheit vermittelt. Das unbehandelte Holz der tragenden Innenwände, die freiliegenden Decken und die sichtbaren Lehmwände führen zu einem natürlichen Gefühl der Behaglichkeit. Es gibt keine Fliesen, als Bodenbelag dient lediglich Kork.
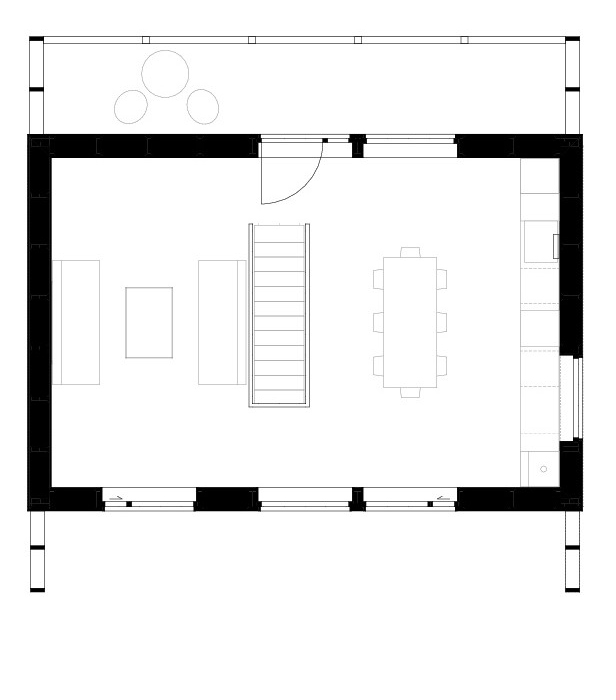
Das kompakte Gebäude ist nach Süden ausgerichtet. Große Fenster mit Sitznischen bieten einen weiten Blick in die Landschaft und sorgen gleichzeitig für viel natürliches Licht im Innenraum. Die Raumanordnung ist nach Gesichtspunkten des Wärmeflusses und des Wohlbefindens gewählt: Im Erdgeschoss befinden sich die Schlafzimmer, das Arbeitszimmer sowie das Bad und die Toilette. Im Obergeschoss, wohin die interne Wärme ganz von selbst zieht, ist der große Wohnraum mit Küche, Essbereich und Wohnzimmer angeordnet, voneinander getrennt lediglich durch die Brüstung der Treppe (Bilder 2–4).
Bild 4 Grundriss EG und OG (Quelle: strohtektur)
Menschen verbringen etwa 75 % ihrer Zeit in Innenräumen. Deshalb ist es essenziell, dass diese Räume sowohl das körperliche als auch das geistige Wohlbefinden fördern. Oft zeigen Beispiele von Architektur mit biobasierten Materialien jedoch unregelmäßige Formen und eine Ästhetik ohne klare Linien. NOW Lindow strebt deshalb eine Ästhetik der Klarheit an, die ein natürliches Gefühl von Behaglichkeit fördert. Damit die Bewohner:innen und die Besucher:innen auch sehen, was sich hinter diesem Anspruch verbirgt, gibt es in einer Außenwand ein kleines Sichtfenster, das einen Blick auf die Strohdämmung erlaubt (Bild 5).
3 Materialität: taktile Qualität durch Natürlichkeit
Die Materialien laden bewusst zum Berühren und Erkunden ein. Die mit Stroh gedämmten Außenwände sind mit Lehmputz versehen, dessen Oberfläche subtil strukturiert ist. Die tragenden Innenwände und die Decke aus Brettsperrholz zeigen selbstbewusst ihre Astlöcher. Lehmputz und Kork im Innen- und Kalkputz im Außenraum sorgen für eine ideale Feuchtigkeitsregulierung. Das verdichtete Stroh, mit Lehm und Kalk geschützt, erfüllt Brandschutzanforderungen für GK3 bis zu F30 nach dem allgemeinen bauaufsichtlichen Prüfzeugnis P-3048/817/08-MPA BS des Instituts für Baustoffe, Massivbau und Brandschutz der TU Braunschweig. Dass auch Wohngebäude in Gebäudeklasse 4 mit Stroh, Holz und Lehm möglich sind, zeigt die Wohnanlage querbeet in Lüneburg [1, 2].
Bei der Wahl der Materialien wurde gezielt darauf geachtet, dass sie überwiegend regional verfügbar, schnell nachwachsend und biologisch sind. Insgesamt wurden 80 m3 Stroh und 18 m3 Holz verwendet und zusammen mit Lehm, Hanf und anderen Materialien mehr als 22 t CO2 gespeichert (nur Herstellungs- und Errichtungsphase A1–A5, s. Bild 1). Überreste der Baumaterialien aus Stroh, Hanf, Schafwolle (Fugendichtung), Kalk und Lehm schließen den biologischen Kreislauf und können im Garten als Dünger verwendet werden. Dadurch wurden die Bauabfälle minimiert und der Sandboden nachhaltig regeneriert.
4 Konstruktion: Materialeffiziente Bauweise
Die Hauptstruktur des Gebäudes besteht aus einer Holzständer-Konstruktion, ausgefacht mit Dämmung aus Baustrohballen, die komplett ohne Beton oder Zement auskommt (Bilder 6, 7). Die tragenden Elemente – also die Bodenplatte, die Wände und das Dach – sind in Konstruktionsvollholz (KVH) aus heimischer Kiefer und Fichte gefertigt. Die Innenwände und die Zwischendecke bestehen aus Brettsperrholz aus heimischer Kiefer. Die Außenbauteile wie Balkon und Terrasse sind aus heimischer Lärche gefertigt.
Um eine hohe Verarbeitungsqualität der Bauelemente zu erreichen, wurden diese teilweise vorgefertigt. Konkret wurden die Bodenplatte, die Wände und das Dach in gut transportierbaren Bauelementen im Werk vorgefertigt (inklusive Strohdämmung und Fenster) und konnten dann in nur drei Tagen vor Ort zusammengeschraubt werden (Bild 8). Zur Entkopplung und Abdichtung der Fugen dient Schafwolle. Die montierten Wände wurden schließlich verputzt, innen mit Lehmputz und außen mit Kalkputz. So hat die gesamte Wandkonstruktion einen U-Wert von 0,15 W/m2·K, das Dach sogar 0,13 W/m2·K. Durch die Vorfertigung konnten der Verschnitt minimiert, Material effizient eingesetzt und Abfälle drastisch reduziert werden. Auf der Baustelle fiel kein Containerabfall an.
Die hier angewandte Strohbauweise ist dabei keine experimentelle Sonderlösung, sondern seit über zehn Jahren als zugelassene Bauweise etabliert. Sie ist in Deutschland baurechtlich anerkannt und erfordert keine Sondergenehmigungen [1]. Dadurch lässt sich die Umsetzung regulatorisch einfach und vergleichbar mit konventionellen Holzbauprojekten realisieren. Das macht die Bauweise nicht nur ökologisch sinnvoll, sondern auch planerisch und genehmigungsrechtlich verlässlich.
Das komplette Gebäude steht auf Metall-Schraubfundamenten, wodurch auf die Herstellung eines Fundaments aus Beton komplett verzichtet werden konnte (Bild 9). Nach Erstellen eines Bodengutachtens und einer statischen Planung wurden insgesamt 20 Fundamentschrauben zwischen 2 und 3 m tief in den Boden eingeschraubt. Damit konnte auch die leichte Geländeneigung ausgeglichen werden. Zwischen der Bodenplatte des Hauses und dem Gelände bleibt eine Luftschicht von rund 30 cm, was dazu beiträgt, dass sich keine Feuchtigkeit in den konstruktiven Bauteilen festsetzen kann. Der Boden wird dadurch nicht verdichtet und bleibt versickerungsfähig. Der Vorteil der Schraubfundamente liegt auf der Hand: Sollte das Haus einmal wieder rückgebaut werden, lassen diese sich einfach aus dem Boden herausschrauben. Dabei bleiben keine Rückstände und die Schrauben können sogar wiederverwendet werden.
5 Gebäudetechnik: einfach und wartungsarm
Innerhalb einer derartigen Gebäudehülle, die den Passivhaus-Standard erreicht, beeinflusst jede Wärmequelle die Innenraumtemperatur. Somit ist es möglich, auf ein zentrales Wärmesystem zu verzichten. Stattdessen werden die Räume mittels Infrarotheizungen an der Decke gezielt beheizt (Bild 10). In den drei Erdgeschoss-Zimmern befindet sich jeweils ein Gerät mit einer Leistung von 420 W, im Bad zwei Geräte mit jeweils 250 W. An der Decke des Wohnraums im Obergeschoss sind insgesamt 4 Geräte mit jeweils 540 W angeordnet. Die Infrarotpaneele sind sehr materialschonend, da nur ein Stromanschluss notwendig ist. Sie können außerdem schnell reagieren und gezielt eingesetzt werden. Die Raumanordnung hilft, die Nutzenergie zu senken, und auch die Resilienz des Heizsystems ist gewährleistet, da bei einem Ausfall einer Platte das System trotzdem weiterarbeitet. Warmwasser für das ganze Haus wird mit einem Durchlauferhitzer erzeugt.
Die gesamte Gebäudetechnik funktioniert also über die Energiequelle Strom, womit auf direkte fossile Brennstoffe gänzlich verzichtet werden kann. Auf dem Dach wurde zudem eine Photovoltaikanlage mit einer Leistung von 11 kWp installiert, die zusammen mit einem 6 kWh großen Stromspeicher Strom für die Eigenversorgung liefert und in den Nachtstunden und im Notfall für energetische Unabhängigkeit sorgt.
6 Nachhaltigkeit: Ein Haus, das atmet
NOW Lindow entnimmt Rohstoffe aus den natürlichen Kreisläufen, nutzt sie effizient und führt sie nach Gebrauch wieder zurück. Die einzelnen Baustoffe können einfach und vollständig demontiert, ersetzt und instand gesetzt werden. Somit fungiert das Gebäude als CO2-Speicher und Materialbank, sichert also wertvolle Rohstoffe, die wiederverwendbar, regenerativ und gesund sind (Bild 11).
Das bezieht sich vor allem auf die Wärmedämmung aus Stroh, einem nachwachsenden und leicht verfügbaren Rohstoff, der später einmal wiederverwendet werden kann und auch einfach kompostierbar ist. Die verbauten 80 m3 speichern rund 10 t CO2. Das in die Boden-, Wand- und Dachelemente gepresste Stroh ist ohne Verbindungen fixiert und bleibt gänzlich unbehandelt. Geschützt wird es außen durch den Kalkputz und innen durch den Lehmputz. Das Kunststoffgarn der einstigen Strohballen wurde zu Hockern verarbeitet. Nach der Bauphase bleibt das Gebäude klimapositiv und sichert damit 8 t CO2, die der Luft entzogen wurden.
Das durchdachte Energiekonzept reduziert den Bedarf an Materialien und Technik. Mit dem NOW Lindow wird gezeigt, dass nachhaltiges Bauen wirtschaftlich, elegant und minimalistisch sein kann – und wie der Materialeinsatz und biobasierte Baustoffe zu einem gesunden Raumklima führen können, ohne Mehrkosten zu verursachen. Der Einsatz günstiger, nachwachsender Materialien, sichtbarer Oberflächen, einfacher handwerklicher Lösungen sowie eine reduzierte Haustechnik senken die Kosten für das Bauwerk deutlich.
7 Klimadesign: Einfach und passiv
Das Klimadesign des NOW Lindow folgt einem konsequent passiven Ansatz, der auch die bauphysikalischen Stärken der Naturmaterialien nutzt. Die Kombination aus Lehm- und Kalkputzen, unbehandeltem Holz und einer hochwirksamen Strohdämmung bildet eine diffusionsoffene Gebäudehülle, die aktiv zur Feuchteregulierung beiträgt. Lehm und Kalk können große Mengen Luftfeuchtigkeit aufnehmen, in ihren Poren zwischenspeichern und zeitverzögert wieder abgeben. In Verbindung mit der kapillaraktiven Strohdämmung entsteht ein hygroskopisches System, das Feuchte ausgleicht, Kondensat vermeidet und ohne mechanische Lüftung ein stabiles Innenraumklima erzeugt. Die thermische Trägheit der massiven Lehmoberflächen wirkt zusätzlich wie ein Puffer: Temperaturspitzen werden abgefangen, die Raumluft bleibt über den Tag hinweg konstant und behaglich (Bild 12).
Auch der sommerliche Wärmeschutz ist integraler Bestandteil des Konzepts. Ein auskragender Dachüberstand reduziert die direkte Einstrahlung auf die Fassade, während eine saisonale Begrünung die Außenwände in den heißen Monaten verschattet. Die einjährige Pflanze wird im September geerntet, sodass die tief stehende Sonne im Herbst und Winter wieder ungehindert in die Räume gelangen kann und zur passiven Erwärmung beiträgt (Bild 13).
Für die natürliche Kühlung setzt das Gebäude auf Querlüftung. Öffnungen nach Norden und Süden ermöglichen eine effektive Durchströmung. Der Luftwechsel lässt sich über Fensteröffnungen regulieren, unterstützt durch die diffusionsoffenen Wandaufbauten, die Feuchte und Wärme kontinuierlich ausgleichen. Im Winter sorgen die kompakte Form, die hohe Dämmleistung der Strohballen und die speicherfähige Innenoberfläche dafür, dass Wärmeverluste gering bleiben und das Gebäude mit wenig Energieeinsatz passiv betrieben werden kann.
So entsteht im NOW Lindow ein Klimadesign, das nicht auf komplexe Technik setzt, sondern auf bauphysikalische Intelligenz. Die atmende Gebäudehülle, die saisonale Verschattung und die natürliche Lüftung zeigen, wie leistungsfähig einfache Maßnahmen und regenerative Materialien sein können, wenn sie richtig kombiniert werden.
8 Ausblick
Seit der Fertigstellung Ende 2024 (Bilder 14, 15) finden immer wieder Führungen und Diskussionsrunden zum kreislauffähigen und ökologischen Bauen statt. Der steigende Grad an Vorfertigung ermöglicht eine gleichbleibend hohe Qualität, kurze Bauzeiten und eine gute Kostenkontrolle. Dadurch ist die Bauweise heute skalierbar und längst nicht mehr auf Einfamilienhäuser beschränkt. Großprojekte wie das Logistic Center West zeigen die Skalierbarkeit der Strohbauweise: Dort wurden insgesamt rund 42 000 m2 Strohwände realisiert – eine Fläche vergleichbar mit etwa sieben Fußballfeldern. Auch mehrgeschossige Wohnbauten mit bis zu zwölf Geschossen, wie in Malmös modernstem und nachhaltigstem Stadtteil Hyllie, zeigen, dass Strohbau auch im urbanen Maßstab und für komplexe Bauaufgaben realisierbar ist [3].

Literatur
- Scharmer, D., Kaesberg, B. (2024) Leitfaden Strohbau – Nachhaltig Bauen und Dämmen mit Stroh. Gülzow-Prüzen: Fachagentur Nachwachsende Rohstoffe e. V.
- Scharmer, D., Holtermann, V., Kern, E., Kampmeier, B., Klattenhoff, H., Nägel, A. (2025) Mehrgeschossig mit Stroh: Gemeinschaftswohnprojekt querbeet. nbau 4, H. 1. www.nbau.org/2025/02/25/mehrgeschossig-mit-stroh-gemeinschaftswohnprojekt-querbeet.
- Ecocon (2024) How ecococon straw wall panels redefine building at every size[online]. Bratislava, Slovakia: EcoCocon, 13.12.2024.https://ecococon.eu/de/blog/2024/how-ecococon-straw-wall-panels-redefine-building-at-every-size.
Projektdaten
- Fläche BGF 120 m2, Wohnfläche 90 m2
- Kosten 300 000 €, 2.500 €/m2 BGF
- Bauzeit Mai bis Dezember 2024
- Konstruktion strohgedämmtes Holzständerwerk, Vorfertigung, Lehm- und Kalkputz, Gründach, Schraubfundamente, Infrarotheizung, PV-Anlage mit Speicher
Projektbeteiligte
- Architektur und strohtektur – Alessandro Tonnarelli,
- Projektsteuerung Berlin – www.strohtektur.de
- Tragwerksplanung Frank Haase, Leverkusen,
www.frank-haase.com - Strohfirma Halm GmbH, Hohenmocker,
www.halm-haus.de - Putzer Jason Adkins, Berlin
- Schraubfundamente Winkelmann Foundations Screw,
www.winkelmann-construction.com/de
Produkte und Hersteller
- Fenster Holzfenster Classic IV 92, Neuffer Fenster
- Lehmputz Unterputz und Oberputz mit Strohanteil, Schleusner
- Innenfarbe Lehmfarbe und Kaseinanstrich, Kreidezeit
- Kalkputz Pajalith 73, Gräfix
- Außenfarbe Silikatfarbe 614 mit Hydrophobierung, Rabolin
- Boden Ziro Kork plus Classico Hartwachs-Öl, 12 mm
- Innentür Massivholz, Design strohtektur
- Infrarotheizungen 250, 420 und 540 W, DigelHeat
- Durchlauferhitzer 18 bis 24 kW Stiebel
- Gründach Systemaufbau Sedumdach Leicht 15° bis 20°, Sempergreen
- Treppe Composity 84
- Küche Vollholzküche, Tischlerei Andreas Baldin
Autor:in
Alessandro Tonnarelli, at@strohtektur.de
Strohtektur, Berlin
















